Guide

Looking to buy or sell? Check out our step-by-step guides

Sign Up Below
To Download Our Buyers Guide

    Sign Up Below
    To Download Our Sellers Guide

      Main Content

      2468 Congress Street Fairfield, CT 06824
      Listing 24025127
      • Beds 4
      • Baths 2
      • Flooring Size 1,904 sq. ft
      • acres 1.35
      • Garage 2
      $702,500
      • Status Sold
      • Year Built 1953
      • Property Type House

      About This Property

      Tucked behind stone walls and mature trees sits a charming Cape in Fairfield's lower Greenfield Hill neighborhood. Bring your imagination and ideas for this 1,900 square foot home on a picturesque street! The stone walkway, black window shutters, and wisteria draping the garage are welcoming sights.

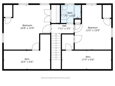
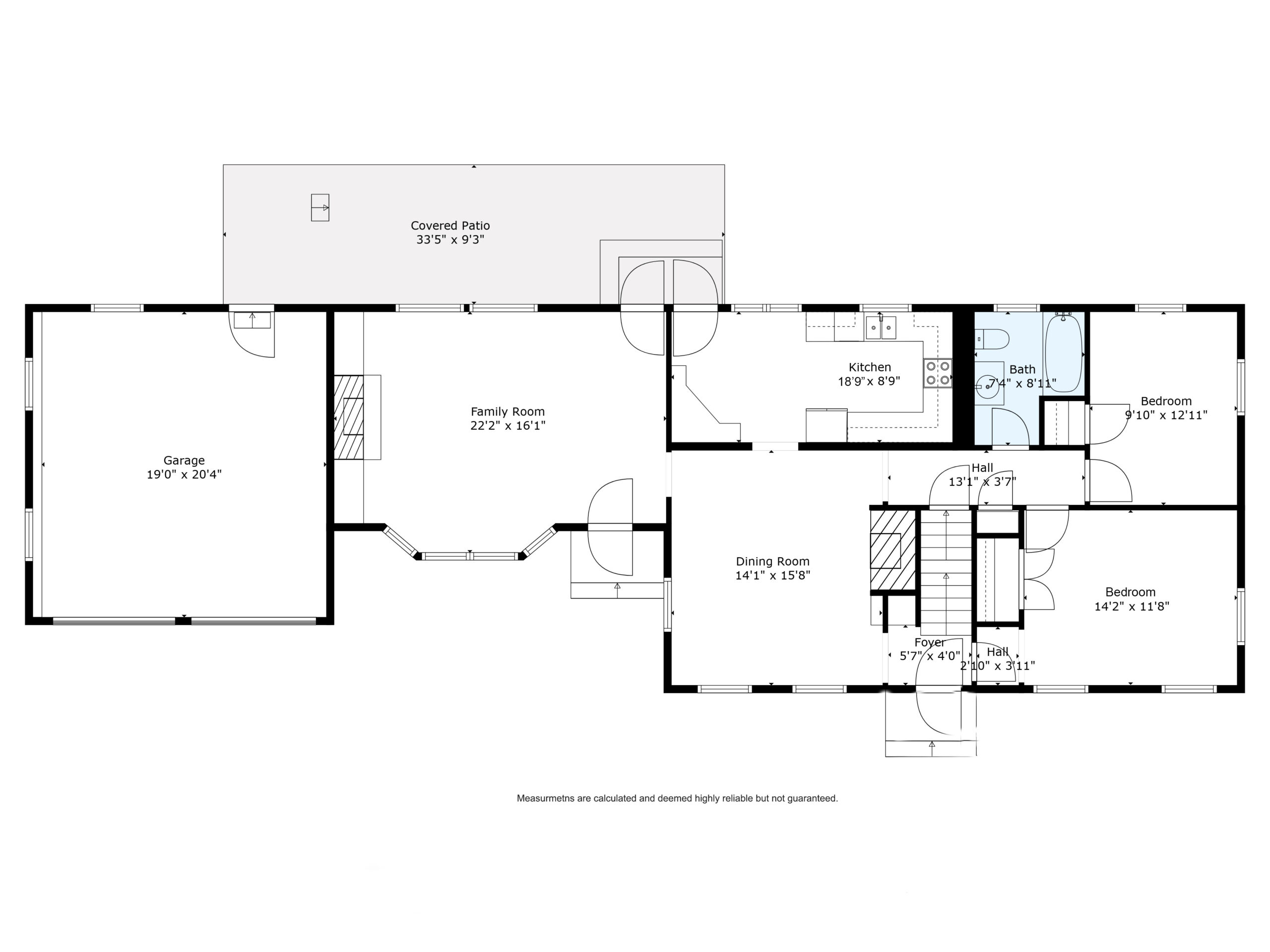
      Inside, the front foyer is flanked by the formal dining room and living room/bedroom. The dining room features a fireplace, built-ins, and a chair rail and is the perfect size to host all kinds of gatherings and holiday meals. Pass through the dining room to the kitchen which is awaiting your personal touch, with views and access to the patio and sprawling yard beyond. The oversized, sun-filled family room has wide plank floors, built-in bookshelves, a wood-burning brick fireplace, a bay window overlooking the front yard and Dutch door. Continuing to the other side of the house, two bedrooms and a full bathroom complete the main level. On the second floor, you'll find two bedrooms and a full bathroom with eye-catching wallpaper, plus a walk-in closet and additional storage in the eaves.

      Step outside to your piece of paradise, an expansive backyard on 1.35 acres. The covered porch is the perfect place to enjoy a summer breeze or a rain storm covered under the shade, and the lawn provides ample opportunity for a garden area. The lawn is perfect to enjoy soccer games, host parties with friends and family, chase the dogs around, and catch fireflies during the summer nights. A shed and two car garage complete this home. 2468 Congress Street is located just minutes to Black Rock Turnpike and the Merritt Parkway, making running errands or commuting a breeze. This home has been loved by the current owners and welcomes the opportunity for another to create their dream home.

      Copy of 2468 Congress Street magazine by Pritchard Homes Team

      Skip to content